Design
Villas| apartments| hotels| hospitals| shopping malls |more……
Tiles| floors| bathrooms| doors and windows| cabinets| more…..
Whole House Design Services
Once we receive the blueprints or layout plans of your home or building, our expert design team at George Group will craft a personalized design tailored to your needs. This includes considerations for efficient space planning, budget constraints, and your individual style preferences.
Our design services also include high-quality 3D visualizations with material suggestions, as well as detailed design plans. We provide fully coordinated technical drawings to ensure the seamless integration of materials and successful installation at the completion of your project.
Expert Design Team in China
At George Group, our design team in China has partnered with Italian designers and suppliers to strengthen our global expertise. With years of experience in the industry, we are equipped to offer tailored proposals across various budget ranges, ensuring you receive exactly what you need at competitive prices, without compromising on quality.
Our Service Process
Initial Consultation and Project Discussion
Contact us to schedule a consultation where we discuss your project needs, including materials and services.
Choose Your Preferred Decoration Style
Select the decoration style that best suits your vision.
Preliminary Design Plan Creation
We’ll provide a preliminary design plan within 3 days, tailored to your preferences.
Sign Contract and Make Payment
Once the plan is finalized, sign the contract and make the deposit payment to start the process.
Final Design Adjustments
We’ll make any necessary adjustments to the house or building design within 1 week.
Material Selection and Purchase Assistance
Our chief designer will assist you in selecting and purchasing the best building materials for your project.
Production Progress Updates
We will provide regular updates on the progress of the production and manufacturing process.
3-Stage Project Supervision and Installation Guidance
We provide 3-stage project supervision and installation guidance to ensure smooth execution.
24-Hour Online Customer Support
Reach out to our customer service center anytime for support. We are here to help you.
Stylized 2D Floorplans for Real Estate
2D floor plans have become a vital tool in the real estate industry, providing clients with a clear and detailed visualization of house layouts. Showcasing furniture placement and textured floors, they offer a superior way to present properties.
- Transform Blueprints into Vibrant Floorplans
- Clear, Detailed Home Layout and Structure
- Enhanced Visualization Compared to Photos


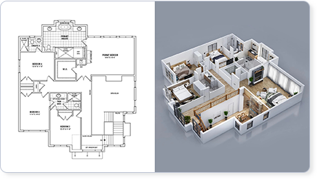
3D Floorplans
Make your property stand out from the crowd and help your buyers mentally move in. Showcase everything, from furniture layouts to wall colors and floor textures.
- Show a detailed furniture layout for the entire home
- Show the final look of the entire property
- Assists clients with interior design


Customized Design
Here at George Deco, we recognize our clients’ personal needs and celebrate their distinctive style. Whether you prefer minimalist designs or elaborate and intricate styles, our talented designers respect our clients’ design preferences.
We will integrate our clients’ preferences and space requirements to create beautiful, functional spaces, knowing that we have available building materials and manpower expertise to make it all possible.
Case of home decoration style
We design different decoration styles for thousands of customers every year, such as modern style, light luxury style, European – inspired simple style, log style, creamy style and so on. As long as you like it, we can design it for you.
Contact Us
Share Your Project Details – Get a Quote in 24 Hours!
Kindly Send Us Your Project Details .
We Will Quote for You Within 24 Hours .





